

|
||||||||||||||||||||||||||||||||||||||||||||||||||||||||||||||||||||||||||||||||||||||||||||
|
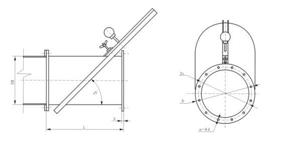
產品介紹 密閉式斜插板閥概述: 密閉式斜插板閥適用于密閉性要求較高的除塵氣力輸送管道,調節或切斷物料流量的主要控制設備,具有結構簡單、重量輕、無卡阻、操作靈活等優點,廣泛地應用于冶金、礦山、建材、玻璃等行業系統中,控制物料的流量調節或切斷作用。 密閉式斜插板閥主要性能: 介質流速:≤8m/s 工作溫度:≤130℃ 適用介質:無粘度的粉塵氣體、固體粉料、小顆粒物料。 密閉式斜插板閥可水平或垂直安裝,但氣流方向必須和閥體上的箭頭方向一致,水平管道上插板應以45度順氣流安裝,在垂直管道(氣流向上)上插板以45度逆氣安裝。其公稱直徑指管道外徑值。 密閉式斜插板閥適用于密閉性要求較高的除塵氣力輸送管道,調節或切斷物料流量的主要控制設備,具有結構簡單、重量輕、無卡阻、操作靈活等優點。 ![]() 密閉式斜插板閥主要外形及連接尺寸表:
密閉式斜插板閥訂貨知 訂貨時請填寫《規格書》或注明以下內容: 一、若訂貨前還未選定型號,請向我們提供您的使用參數:1.公稱通徑、額定流量系數KV, 2.流體性質(包括公稱壓力、溫度、粘度或酸堿性),3.閥作用形式(電-關式或電-開式),4.流量特性, 5.閥前、閥后壓力,6.閥體、閥芯材料,7.輸入信號,8.是否帶附件,說明附件型號。以便我們的為您正確選型。 二、若已經由設計單位選定我公司的產品型號,請按型號直接向我司銷售部訂購; 三、當使用的場合非常重要或管路比較復雜時,請您盡量提供設計圖紙和詳細參數,由上海上兆閥門制造有限公司專家為您審核把關。 | ||||||||||||||||||||||||||||||||||||||||||||||||||||||||||||||||||||||||||||||||||||||||||||
相關產品 |
||||||||||||||||||||||||||||||||||||||||||||||||||||||||||||||||||||||||||||||||||||||||||||