

|
||||||||||||||||||||||||||||||||||||||||||||||||||||||||||||||||||||||||||||||||||||||||||||||||||||||||||||||||||||||||||||||||||||||||||||||||||
|
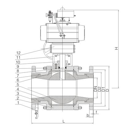
產品介紹 氣動陶瓷球閥--產品概述: Q641TC-16C 氣動陶瓷球閥的閥體內部與介質接觸部分(包括球體及閥體內襯)均采購高性能結構陶瓷材料,在火電廠脫硫脫硝、氣力除灰、化工冶金、多晶硅硅粉氣力輸送等各種高腐蝕、高磨損、高沖壓等。 氣動陶瓷球閥--主要性能特點: 1. 閥門殼體采用碳鋼或不銹鋼材料,采用三段式結構設計,結構簡單可靠,并能保護內部陶瓷部件免受損壞。 2. 閥門球體及與介質接觸的所有部位均內襯結構陶瓷材料,高純氧化鋁陶瓷和氧化鋯陶瓷具有耐腐蝕性能,在除氫酸外的絕大部分強腐蝕酸堿介質中都不會腐蝕,作為耐腐蝕閥門,在眾多耐腐蝕領域 3. 高純氧化鋁陶瓷和增韌氧化鋯陶瓷除了具有耐腐蝕性能外,同樣具有硬度(洛氏硬度HRA>88,僅次于金剛石等少數幾種材質), 因此在各種含有固體顆粒的高沖刷高磨損工況中,可以長期使用而不會被磨損。 氣動陶瓷球閥--應用領域: 1. 火電廠煙氣脫硫脫硝石灰水、石灰石漿液、石膏漿液 2. 火電廠氣力除灰 3. 多晶硅硅粉氣力輸送 4. 冶金粉末氣力輸送 5. 濕法冶金硫酸與礦砂混合物 6. 其他高腐蝕、高磨損、高沖刷工況 氣動陶瓷球閥--主要零部件材料: 主體:碳鋼(A105)、不銹鋼(F304,F316,F304L,F316L)等 閥球:結構陶瓷 閥座:結構陶瓷 填料:柔性石墨,PTFE 公稱通徑:DN15-DN300(1/2"-12") 公稱壓力:PN6-PN100 適用溫度:-29~+230℃ 操作方式:手柄,蝸輪,氣動,電動,電液聯動等 適用介質:各種高腐蝕、高磨損、高沖刷介質 氣動陶瓷球閥--主要外形和連接尺寸: ![]()
| ||||||||||||||||||||||||||||||||||||||||||||||||||||||||||||||||||||||||||||||||||||||||||||||||||||||||||||||||||||||||||||||||||||||||||||||||||
相關產品 |
||||||||||||||||||||||||||||||||||||||||||||||||||||||||||||||||||||||||||||||||||||||||||||||||||||||||||||||||||||||||||||||||||||||||||||||||||