

|
||||||||||||||||||||||||||||||||||||||||||||||||||||||||||||||||||||||||
|
產品介紹 一、800X壓差旁通閥--概述
800X壓差旁通閥是一種用于空調系統供/回水之間以平衡壓差的閥門。該閥門可提高系統的利用率,保持壓差的精確互定直,并可最大限度地降低系統的噪音,以及過大壓差對設備造成的損壞。800X壓差旁通閥優越于其他平衡閥的地方在于它沒有執行機構,完全介質自身的壓力差來達到平衡系統的功能,節約能源及安裝空間,是一種智能型閥門。 二、800X壓差旁通閥--部件列表
1、針型閥 2、導閥 3、球閥
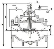
三、800X壓差旁通閥--主要外形及連接尺寸
四、800X壓差旁通閥--安裝示意圖
上兆閥門其他產品: 閘 閥 截止閥 球 閥 蝶 閥 緊急切斷閥 電磁閥 水力控制閥 止回閥 刀型閘閥 旋塞閥 過濾器 減壓閥 疏水閥 隔膜閥 調節閥 阻火器 呼吸閥 燃氣閥門 冶金閥門 | ||||||||||||||||||||||||||||||||||||||||||||||||||||||||||||||||||||||||
相關產品 |
||||||||||||||||||||||||||||||||||||||||||||||||||||||||||||||||||||||||