1、(K)TP41Y
閥套式排污閥是一種新型的節流、截止、放空產品,該閥門采用籠形迷軍團節流,具有多級節流效果,節流效果明顯、密封可靠、操作維護方便等特點。
2、閥門采用雙重密封(硬、軟質密封)使密封可靠、硬質合金封面可以更耐氣流沖刷、耐磨損,雙重密封能做到在高壓氣體介質條件下的零泄漏。閥門使用壽命長。
3、閥座的密封面采用錐度密封,有利于閥門自身清洗附在密封面上的臟物。
4、閥門的閥瓣上設置了平衡孔,活塞式密封,保證了啟/閉全壓差條件下穩定操作,開啟輕便靈活、啟閉扭矩小。
5、填料采用帶自密封能力的v形填料結構,無需調節,開、關極為輕便。填料函處設有輔助密封油脂注入結構,使閥門填料密封性能可靠。
6、本閥門可以進行在線維修,管線可以帶壓狀態下更換填料等一系列易損件。
7、本閥在閥門的底部設置了較大的排污孔,必要時要以打開,清理閥內污物。
8、
排污閥閥瓣的外園處高有o形密封圈,在啟/閉時具有自清掃功能和密封,排污時具有節流降壓功能。
1、常閉狀態:閥瓣硬密封付壓在閥座凸臺上,形成一道硬質密封,同時嵌在閥瓣上的軟質密
封與閥座端面緊壓,形成第二道密封,雙質密封結構保證了閥門的零泄漏,再由于閥瓣開設了平衡
孔,使閥門在關閉、開啟時,閥瓣受到較小的作用力,也使閥門開啟、關閉時具有較小的力矩。
2、節流排污狀態:閥瓣密封付離開閥座,由于在閥瓣處設有了平衡孔,使閥門開啟極為輕
便。閥門開啟后,管道中的介質、雜質一同流過閥套、閥座,同時實現節流與排污。閥瓣、閥座密
封面利用套墊斜角改變介質流向,具有自清掃功能,使密封付不夾帶雜質。
3、關閉狀態:管道中介質排放后關閉閥門,介質從套墊斜角處進入閥座通道,流阻系數增加,
流速加快,斜角改變介質流向方向,產生渦流,閥座端面介質徑向力增加,實現閥座啟封的吹掃。
閥瓣密封付接近閥座時,套墊與閥座通道的配合間隙阻止較大顆粒介質流向密封付,加之流速的進
一步增大和介質橫向力的吹掃,閥門關閉時密封付雜質已完全清掃干凈,保證了閥門排污后的密封
性能,從而進一步保證排污后密封性也能達到無泄漏。因此大大提高了能力并延長了使用壽命
性能規范:
壓力等級 | 常溫試驗壓力mpa | 適用溫度℃ | 適用介質 |
殼體 | 密封 | 上密封 | 氣體低壓密封 | g型 | d型 d | 普通 | 抗硫型 | 普通 |
公稱壓力 mpa | 1.6 | 2.4 | 1.76 | 1.76 | 0.6 | -29~250 | -45~121 | -29~121 | 含h2s和 co2>500mg/m3 的介質 | 石油、天然氣、 水等 |
2.5 | 3.8 | 2.75 | 2.75 | 0.6 |
4.0 | 6.0 | 4.4 | 4.4 | 0.6 |
6.4 | 9.6 | 7.04 | 7.04 | 0.6 |
10.0 | 15.0 | 11.0 | 11.0 | 0.6 |
16.0 | 24.0 | 17.6 | 17.6 | 0.6 |
制造標準:
設計標準 | gb/t 12235 |
結構長度 | 法蘭連接 | gb/t 12221 |
對焊連接 | gb/t 15188.1 |
連接法蘭 | jb/t79gb/t9113 |
對焊端 | gb/t 12224 |
試驗和檢驗 | jb/t9092 |
序號 | 零件名稱 | 材質 |
1 | 雙頭螺柱 | 35crmo |
2 | 螺母 | 35 |
3 | 底蓋 | 20 |
4 | o形圈 | nbr |
5 | 閥體 | wcb |
6 | 排污套 | 1cr18ni9 |
7 | 慮網 | 1cr18ni9 |
8 | 閥座 | 20+ni45 |
9 | 內六角圓柱頭螺釘 | 35 |
10 | 壓板 | 20 |
11 | 密封圈 | nbr |
12 | 芯套 | 20+enp |
13 | 閥瓣 | 2cr13+ni60 |
14 | 鋼球 | gcr15 |
15 | 閥桿 | 2cr13 |
16 | 閥蓋 | 25 |
17 | 下填料墊 | 1cr13 |
18 | 中填料 | ptfe |
19 | 中填料 | nbr |
20 | 上填料墊 | 1cr13 |
21 | 隔環 | ptfe |
22 | 填料壓蓋 | 45 |
23 | 支架 | wcb |
24 | 閥桿螺母 | zqal9-4 |
25 | 手輪 | 20 |
26 | 螺母 | 35 |
27 | 注脂閥 | 25+鍍鋅(組件) |
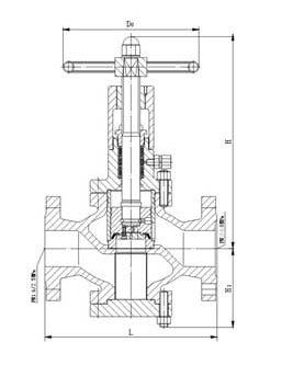
1.6-4.0MPa主要外形連接尺寸、重量及產品結構圖:
| DN(mm) | 尺寸mm | 重量(kg) |
L | H | H1 | D0 |
1.6 | 25 | 216 | 243 | 86 | 180 | 18 |
40 | 230 | 265 | 108 | 250 | 25 |
50 | 230 | 346 | 115 | 250 | 28 |
80 | 310 | 409 | 146 | 300 | 53 |
100 | 350 | 433 | 163 | 300 | 62 |
150 | 480 | 521 | 202 | 350 | 128 |
200 | 600 | 594 | 292 | 350 | 168 |
250 | 730 | 621 | 355 | 400 | 289 |
2.5 | 25 | 216 | 243 | 86 | 180 | 18 |
40 | 230 | 265 | 108 | 250 | 25 |
50 | 230 | 346 | 115 | 250 | 28 |
80 | 310 | 409 | 146 | 300 | 57 |
100 | 350 | 433 | 163 | 300 | 69 |
150 | 480 | 521 | 202 | 350 | 145 |
200 | 600 | 594 | 292 | 350 | 188 |
250 | 730 | 621 | 355 | 400 | 315 |
4.0 | 25 | 216 | 243 | 86 | 180 | 21 |
40 | 230 | 265 | 108 | 250 | 31 |
50 | 230 | 346 | 115 | 250 | 35 |
80 | 310 | 409 | 146 | 300 | 70 |
100 | 350 | 433 | 163 | 300 | 85 |
150 | 480 | 521 | 202 | 350 | 172 |
200 | 600 | 594 | 292 | 350 | 219 |
250 | 730 | 621 | 355 | 400 | 378 |
MPa | DN(mm) | 尺寸mm | 重量(kg) |
L | H | H1 | D0 |
6.4 | 25 | 216 | 243 | 86 | 180 | 21 |
40 | 230 | 265 | 108 | 250 | 37 |
50 | 230 | 346 | 115 | 250 | 42 |
80 | 310 | 409 | 146 | 300 | 84 |
100 | 350 | 433 | 163 | 300 | 100 |
150 | 480 | 521 | 202 | 350 | 208 |
200 | 600 | 594 | 292 | 350 | 265 |
250 | 730 | 621 | 355 | 400 | 452 |
10.0 | 25 | 230 | 245 | 78 | 200 | 30 |
40 | 260 | 265 | 106 | 250 | 44 |
50 | 300 | 287 | 110 | 300 | 58 |
80 | 380 | 409 | 152 | 350 | 98 |
100 | 430 | 433 | 169 | 350 | 125 |
150 | 559 | 531 | 225 | 400 | 245 |
200 | 660 | 709 | 321 | 500 | 316 |
250 | 787 | 817 | 399 | 500 | 540 |
16.0 | 25 | 230 | 215 | 78 | 200 | 36 |
40 | 260 | 265 | 105 | 250 | 54 |
50 | 300 | 237 | 110 | 300 | 69 |
80 | 390 | 414 | 155 | 350 | 120 |
100 | 450 | 440 | 175 | 350 | 150 |