Y43X-10T/16T 型全銅比例式減壓閥 PN10~PN16是以法蘭連接形式、活塞式結構形式,閥座密封面材料為橡膠,公稱壓力PN10~PN16,閥體材料為銅的固定比例式減壓閥。主要結構由閥體、進口壓蓋、活塞、出口壓蓋及 O 型圈、密封墊等零件組成。Y43X-10T、Y43X-16T 型全銅比例式減壓閥是利用閥內浮動活塞兩端不同的截面積構成壓力差從而改變進水與出水的壓力狀況,達到減壓的目的。結構嚴謹、新穎、運行流暢、體形輕巧便于安裝、減壓比例穩定,即減“動壓”又減“靜壓”,材料采用全銅,適用于清潔水和海水,不怕結垢和銹獨。
| 型號 | PN | 工作壓力 / MPa | 適用溫度 / ℃ | 適用介質 |
| Y43X-10T | 10 | 1 | ≤90 | 水、氣 |
| Y43X-16T | 16 | 1.6 | ≤90 | 水、氣 |
三、Y43X全銅比例式減壓閥--主要零部件材料:
| 型號 | 閥體材料 |
| Y43X-10T | 全銅 |
| Y43X-16T | 全銅 |
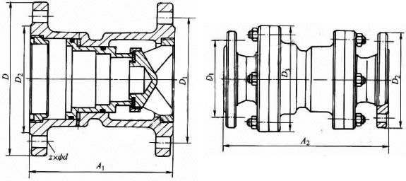
四、Y43X-10T 型--產品外形結構尺寸(mm):
| 比例 | DN | D | D1 | D2 | A1 | b | z×φd | D3 | A2 |
2:1 3:1 5:2 3:2 4:3 | 25 | 115 | 85 | 65 | 115 | 16 | 4×φ14 | — | — |
| 32 | 140 | 100 | 78 | 124 | 18 | 4×φ18 | — | — |
| 40 | 150 | 110 | 85 | 132 | 18 | 4×φ18 | — | — |
| 50 | 165 | 125 | 100 | 140 | 20 | 4×φ18 | — | — |
| 65 | 185 | 145 | 120 | 155 | 20 | 4×φ18 | — | — |
| 80 | 200 | 160 | 135 | 155 | 22 | 8×φ18 | — | — |
| 100 | 220 | 180 | 155 | 200 | 24 | 8×φ18 | — | — |
| 125 | 250 | 210 | 185 | 220 | 26 | 8×φ18 | — | — |
| 150 | 285 | 240 | 210 | 230 | 28 | 8×φ22 | — | — |
| 200 | 340 | 295 | 265 | 270 | 28 | 8×φ22 | — | — |
4:1 5:1 | 25 | 115 | 85 | 65 | — | 16 | 4×φ14 | 115 | 178 |
| 32 | 140 | 100 | 78 | — | 18 | 4×φ18 | 140 | 188 |
| 40 | 150 | 110 | 85 | — | 18 | 4×φ18 | 150 | 195 |
| 50 | 165 | 125 | 100 | — | 20 | 4×φ18 | 165 | 205 |
| 65 | 185 | 145 | 120 | — | 20 | 4×φ18 | 190 | 218 |
| 80 | 200 | 160 | 135 | — | 22 | 8×φ18 | 205 | 225 |
| 100 | 220 | 180 | 155 | — | 24 | 8×φ18 | 225 | 273 |
| 125 | 250 | 210 | 185 | — | 26 | 8×φ18 | 260 | 308 |
| 150 | 285 | 240 | 210 | — | 28 | 8×φ22 | 300 | 322 |
| 200 | 340 | 295 | 265 | — | 28 | 8×φ22 | 365 | 358 |
五、Y43X-10T 型--產品外形結構尺寸(mm):
| 比例 | DN | D | D1 | D2 | A1 | b | z×φd | D3 | A2 |
2:1 3:1 5:2 3:2 4:3 | 40 | 150 | 110 | 85 | 132 | 18 | 4×φ18 | — | — |
| 50 | 165 | 125 | 100 | 140 | 20 | 4×φ18 | — | — |
| 65 | 185 | 145 | 120 | 155 | 20 | 4×φ18 | — | — |
| 80 | 200 | 160 | 135 | 155 | 22 | 8×φ18 | — | — |
| 100 | 220 | 180 | 155 | 200 | 24 | 8×φ18 | — | — |
| 125 | 250 | 210 | 185 | 220 | 26 | 8×φ18 | — | — |
| 150 | 285 | 240 | 210 | 230 | 28 | 8×φ22 | — | — |
| 200 | 340 | 295 | 265 | 270 | 30 | 12×φ22 | — | — |
4:1 5:1 | 25 | 115 | 85 | 65 | — | 16 | 4×φ14 | 115 | 178 |
| 32 | 140 | 100 | 78 | — | 18 | 4×φ18 | 140 | 188 |
| 40 | 150 | 110 | 85 | — | 18 | 4×φ18 | 150 | 195 |
| 50 | 165 | 125 | 100 | — | 20 | 4×φ18 | 165 | 205 |
| 65 | 185 | 145 | 120 | — | 20 | 4×φ18 | 190 | 218 |
| 80 | 200 | 160 | 135 | — | 22 | 8×φ18 | 205 | 225 |
| 100 | 220 | 180 | 155 | — | 24 | 8×φ18 | 225 | 273 |
| 125 | 250 | 210 | 185 | — | 26 | 8×φ18 | 260 | 308 |
| 150 | 285 | 240 | 210 | — | 28 | 8×φ22 | 300 | 322 |
| 200 | 340 | 295 | 265 | — | 30 | 12×φ22 | 365 | 358 |
