

| 水力控制閥的選用|上兆閥門提供 發布時間:17-08-20 | ||||||||||||||||||||||||||||||||||||||||||||||||||||
水力控制閥的選用|上兆閥門提供 簡單的介紹一下幾種常用的水力控制閥: 一、100X遙控浮球閥--概述 100X遙控浮球閥由主閥、針閥、球閥、浮球閥、微型過濾器等組成水力控制接管系統,調定后,自動控制液面高度。本產品直接利用液面控制,不需要其它裝置和能源,保養簡便,液面控制準確度高,不受水壓影響,密封可靠。 廣泛用于高層建筑、生活區等供水管網系統的水塔、水池等設施的液面控制。 壓力等級:PN10﹑PN16﹑PN25 隔膜式:DN20~450 活塞式:DN350~800
二、100X遙控浮球閥--工作原理 當管道從水端給水時,由于針閥、球閥、浮球閥是常開的,水通過微型過濾器、針閥、控制室、球閥、浮球閥進入水池,此時控制室不形成壓力,主閥開啟,水塔(池)供水。 當水塔(池)的水面上升至設定高度時,浮球浮起關閉浮球閥,控制室內水壓升高,推動主閥關閉,供水停止。當水面下降時,浮球閥重新開啟,控制室水壓下降,主閥再次開啟繼續供水,保持液面的設定高度。 一、200X減壓穩壓閥--概述 200X減壓穩壓閥由主閥、導閥、針閥、球閥、微型過濾器和壓力表組成水力控制接管系統。使用時,當調定出口壓力后,能自動保持穩定出口壓力。本產品利用導閥自力控制,不需要其它裝置和能源,保養簡便,壓力控制準確度高,受進口壓力和流量影響小,減壓穩壓可靠。廣泛用于高層建筑、生活區等供水管網系統及城市供水工程。 二、200X減壓穩壓閥--工作原理 當閥門從進口端給水時,水流過針閥進入主閥控制室,出口壓力通過導管作用到導閥上。當出口壓力高于導閥彈簧設定值時,導閥關閉??刂剖彝V古潘藭r主閥控制室內壓力升高并關閉主閥,出口壓力不再升高。 當閥門出口壓力降到導閥彈簧設定壓力時,導閥開啟,控制室向下游排水。由于導閥系統排水量大于針閥的進水量,主閥控制室壓力下降。進口壓力使主閥開啟。在穩定狀態下,控制室進水、排水相同,主閥開度不變,出口壓力穩定。 調節導閥彈簧即可設定出口壓力。 一、300X緩閉止回閥--概述 300X緩閉止回閥由主閥、單向閥、針閥、球閥、微形過濾器和壓力表組成水力控制接管系統。利用水力自動操作,可使主閥得到最佳的開啟或關閉速度。防止水鍾水擊的產生,以達到緩閉消聲的效果。利用水力自力控制,不需要其它裝置和能源,保養簡便,開啟及緩閉平穩。廣泛用于高層建筑、生活區等供水管網系統及城市供水工程。
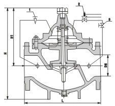
二、300X緩閉止回閥--主要零件材料
三、300X緩閉止回閥--部件列表
1、針閥2、主閥3、球閥4、壓力表5、單向閥
一、400X流量控制閥--概述
400X流量控制閥由主閥、流量調節閥、針閥、導閥、球閥、微形過濾器和壓力表組成水力控制接管系統。利用水力自動操作,控制和調節主閥開度,使通過主閥的流量保持不變。本產品利用水力自力控制,不需要其它裝置和能源,保養簡便,流量控制穩定。廣泛用于高層建筑、生活區等供水管網系統及城市供水工程。
二、400X流量控制閥--工作原理
當閥門從進口端給水時,水流過針閥進入主閥控制室,并經過導閥、球閥流出主閥控制室到出口,此時主閥處于全開或浮動狀態。調定主閥上部的流量調節閥,可為主閥設定一定開度。調節針閥開度和調節導閥彈簧壓力,即可使主閥開度保持在設定開度,并在壓力變化時導閥進行自動調節,保持流量不變。 一、500X泄壓閥/持壓閥--概述
500X泄壓閥/持壓閥由主閥、泄壓/持壓導閥針閥、球閥、微形過濾器和壓力表組成水力控制接管系統。利用水力自動操作,即可以作泄壓閥用又可作持壓閥用。作泄壓閥用時,可維持供水路壓力在設定的安全值之下;做持壓閥用,可維持主閥上游水壓在設定值之上,保持主閥上游供水壓力。
二、500X泄壓閥/持壓閥--工作原理
1、作泄壓閥:當泄壓/持壓導閥調整為泄壓狀態時,水通過針閥、主閥控制室、球閥A、泄壓/持壓導閥、球閥B流向出口,此時主閥處于開啟狀態。當進口壓力超過泄壓/持壓導閥設定的安全值時,泄壓導閥會自動開啟,通過球閥C放出部分水,使管路泄壓。當壓力恢復到安全值時,泄壓閥自動關閉。作泄壓閥時,各球閥常開。
2、作持壓閥:當泄壓/持壓導閥調整為持壓狀態時,只要主閥進口水壓低于導閥設定值,導閥即關閉。主要控制室升壓,主閥關閉。當主閥上游供水壓力超過導閥設定壓力時,持壓導閥才能打開,控制室的水經球閥排至出口,控制室降壓主閥開啟,開始供水,即保持了上游水壓。作持壓閥用時,球閥C常閉或用絲堵換下。 一、600X水力電動控制閥--概述
600X水力電動控制閥由主閥、電磁導閥、針閥、球閥、微形過濾器和壓力表組成水力控制接管系統。通過電磁導閥可以實現對閥門開啟和關閉的遙控。加裝附加裝置后,可控制開啟和關閉的速度。本產品利用導閥控制閥門的開啟和關閉,節省能源??纱嫫渌y門大型電動裝置。
二、600X水力電動控制閥--工作原理
當閥門從進口端給水時,水流流過針閥進入主閥控制室,當電磁導閥打開時,控制室內的水經電磁導閥、球閥流出。球閥開度大于針閥開度,主閥控制室內壓力很低,主閥處于全開狀態。
當電磁導閥關閉時,主閥控制室的水不能流出,控制室升壓,推動膜片關閉主閥。 一、700X多功能水泵控制閥--概述
700X多功能水泵控制閥由主閥、電磁導閥、針閥、球閥、單向閥、行程開關、微形過濾器和壓力表組成水力控制接管系統。水泵需停止工作時,先由進口壓使主閥關閉90%后,水泵停止運轉。剩余10%由回水關閉。可防止水錘現象發生。本產品利用電磁導閥控制,不需要其它裝置和能源。節約能源,保養簡便,停泵平穩。電磁閥可采用交流電220V或直流電24V。
二、700X多功能水泵控制閥--工作原理
當水泵工作閥門向下游供水時,電磁導閥全開,針閥調至適當開度,上游水經針閥、單向閥進入主閥控制室,經電磁導閥流出,此時主閥控制室的壓力保持主閥處于合適的開度,保持下游正常供水。
當水泵停止工作時,電磁導閥先關閉,主閥控制室停止排水,控制室壓力升高,主閥開始關閉。當關閉至90%時,主閥上部行程開關輸出停泵信號,水泵停止運轉。此時下游回水經單向閥進入主閥控制室,控制室壓力升高,主閥被關閉 一、800X壓差旁通閥--概述
800X壓差旁通閥是一種用于空調系統供/回水之間以平衡壓差的閥門。該閥門可提高系統的利用率,保持壓差的精確互定直,并可最大限度地降低系統的噪音,以及過大壓差對設備造成的損壞。800X壓差旁通閥優越于其他平衡閥的地方在于它沒有執行機構,完全介質自身的壓力差來達到平衡系統的功能,節約能源及安裝空間,是一種智能型閥門。
二、800X壓差旁通閥--部件列表 1、針型閥 2、導閥 3、球閥
一、900X緊急關閉閥--概述
900X緊急關閉閥用于生活供水和消防供水并聯供水系統中,正常情況供生活用水,當火災發生時消防用水時,閥門自動關閉生活用水,確保足夠的消防用水。當消防停止用水時壓力減少,閥門自動恢復生活用水,該閥使系統無須另設專門的消防單獨供水管網,大大地節省了工程建設成本和日常的用水量。該閥控制靈敏、安全可靠、調試簡單、使用壽命長。 二、900X緊急關閉閥--主要技術參數
上兆閥門其他產品: 閘 閥 截止閥 球 閥 蝶 閥 緊急切斷閥 電磁閥 水力控制閥 止回閥 刀型閘閥 旋塞閥 過濾器 減壓閥 疏水閥 隔膜閥 調節閥 阻火器 呼吸閥 燃氣閥門 冶金閥門 |
|
||
|
||
|
||
|
||
|
||
|
||
|
||
|
||
|
||
|
||
|
||
|
||
|
||
|
||
|
||