

| 水利控制閥就是利用管道自身的介質壓力控制的閥門 發布時間:17-04-10 | ||||||||||||||||||||||||
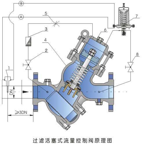
水利控制閥就是利用管道自身的介質壓力控制的閥門 ![]() 水利控制閥就是利用管道自身的介質壓力控制的閥門,水力控制閥由一個主閥及其附設的導管﹑導閥﹑針閥﹑球閥和壓力表等組成。根據使用目的﹑功能及場所的不同可演變成遙控浮球閥﹑減壓閥﹑緩閉止回閥﹑流量控制閥﹑泄壓閥。 水利控制閥--選用要點: ( 1 )工程式中應用的水力控制閥是經過制造廠檢驗合格,各種標識齊全,技術資料符合要求的產品。 ( 2 )根據功能要求,選擇閥門種類,再根據管道輸送介質、溫度、建筑標準和業主 要要求 等,確定閥門的閥體和密封部位的材質。常用的閥 體材料有鑄鐵 、銅鐵、銅、塑料等。常用的密封面和襯里材料有銅合金、塑料、鋼、硬質合金、橡膠等。閥 體材料應與管道材料相匹配。 ( 3 )閥門的公稱壓力有0.6、1.0、1.6、2.5和4.0MPa等不同級別,管道輸送的介質,其工作壓力應小于閥門的公稱壓力值。 ( 4 )工程中水利控制閥的設置應當有足夠的空間,以便管理、操作、安裝和維修,并應符合管路對閥門的要求。 ( 5 )管路采用法蘭連接時,應采用法蘭連接的水力控制閥;管路采用溝槽式連接時,應采用溝槽式連接的水利控制閥。 ( 6 )水利控制閥應設置在介質單向流動的管路上。 ( 7 )水利控制閥主閥體上的箭頭方向必須與管路系統流向一致。 ( 8 )接水利控制閥管段不 應有氣堵 、氣阻現象。在管網最高位置 等存氣段 應設置自動排氣閥。 ( 9 )閥門水平安裝時,閥蓋、閥桿應朝上。垂直安裝時,閥蓋、閥桿應朝外。 ( 10 )閥門安裝前應做強度和嚴密性試驗。 ( 11 )閥門的強度和嚴密性試驗應符合以下規定。 A、閥門的強度試驗壓力為公稱壓力的1.5倍; B、閥門的嚴密性試驗壓力為公稱壓力的1.5倍; C、試驗壓力在試驗持續時間內應保持不變,且殼體填料及閥瓣密封面無滲漏; D、閥門試驗持續時間按上表。 水利控制閥--原理構造: 遙控浮球閥應設置在水池或水箱的進水管道上,宜水平安裝,閥蓋朝上。其控制導管與浮球設置應符合以下要求: 水利控制閥是以管道介質壓力為動力,進行啟閉、調節的閥門。它由一個主閥和附設的導管、針閥、球閥和壓力表等組成、根據使用的目的、功能場所的不同,可演變成遙控浮球 就可以使主閥獲得對水位和水壓及流量等進行單獨和復合調節的功能。但主閥閥體類似截止閥,閥門全開時,其壓力損失比其他閥門要大得多,且各個開度損失系數越是與全閉狀 態接近,越是劇增,閥門口徑越大就越顯著。 YQ98001型過濾活塞式可調減壓閥--原理: YQ98001型過濾活塞式可調減壓閥由比托管傳遞壓差信號給流導閥, 限流閥和針閥執行兩路控控制. 來控制主閥活塞上腔的壓力. 通過限流導閥調節摞栓的調節. 使閥后流量達到設定值; 活塞下腔有節流孔與下游相通. 可綬沖閥門的關閉, 主閥兩端壓力差是閥門啟. 閉的驅動能源。主要用于空調. 給排水. 消防和各類工礦企業等供水管網口需要過濾而且對流量實現控制的場所和工況。能將上游壓力降低至所設置的下游壓力,無論怎樣改變上游的壓力和流量,其預先設定的下游壓力均能夠保持不變。 產品外觀圖
YQ98002型過濾活塞式安全泄壓閥--原理: YQ98002型過濾活塞式安全泄壓閥安裝在高層建筑、消防給水系統以及其它給水系統的管道上,當給水管路中壓力超過泄壓閥設定壓力時,泄壓閥自動開啟快速泄壓,保護管線安全,也可作持壓閥用, 保障主閥上游的供水壓力。YQ98002型過濾活塞式安全泄壓閥能準確保持不變的安全設定壓力,一旦超壓,泄壓閥迅速打開,及時泄壓。關閉平穩可靠,消除壓力余波。利用水力自動操作,即可以作泄壓閥用又可作持壓閥用。作泄壓閥用時,可維持供水路壓力在設定的安全值之下;做持壓閥用,可維持主閥上游水壓在設定值之上,保持主閥上游供水壓力。
YQ98003型過濾活塞式遙控浮球閥--工作原理: YQ98003型過濾活塞式遙控浮球閥主要安裝與水池或高架的進水口處,當水位達到設定的高度時,主閥由浮球導閥控制關閉進水口停止供水;當水位下降后,主 閥由浮球導閥控制打開進水口向水池注水,實現自動補水。液位控制精確,不受水壓干擾;活塞式遙控浮球閥可隨水池的高度及使用空間任意位置安裝,使用壽命 長?;钊介y門性能可靠,強度高、動作平穩。關閉嚴密可靠,閥體采用流線型設計,流體阻力小,流量大;使用維護方便,主閥安裝在水池外面,調試檢驗方便, 維修簡單。YQ98003過濾活塞式遙控浮球主要安裝與水池或高架的進水口處,當水位達到設定的高度時,主閥由浮球導閥控制關閉進水口停止供水;當水位下降后,主閥由浮球導閥控制打開進水口向水池注水,實現自動補水。液位控制精確,不受水壓干擾;活塞式遙控浮球閥可隨水池的高度及使用空間任意位置安裝,使用壽命長?;钊介y門性能可靠,強度高、動作平穩。關閉嚴密可靠,閥體采用流線型設計,流體阻力小,流量大;使用維護方便,主閥安裝在水池外面,調試檢驗方便,維修簡單。 YQ98004型過濾活塞式緩閉止回閥--工作原理: YQ98004型過濾活塞式緩閉止回閥安裝在自來水廠及高層建筑給水系統,以及其它給水系統的水泵出口管道上,防止介質倒流,防止水錘及水擊現象的產生。當水泵開啟時,水通過導管進入中腔,推動活塞上升,主閥開關。當水泵停止工作時,活塞在回水壓力下降,由于進口處針形閥比出口球閥流量小,因此活塞緩慢下降,主閥也隨之緩慢關閉。一閥兼具電動閥,逆止閥和水錘消除器,可以有效地提高供水系統的安全可靠性。我公司生產YQ98004型過濾活塞式止回閥平穩可靠,消除壓力余波。 YQ98005型過濾活塞式電動浮球閥--工作原理: YQ98005過濾活塞式電動浮球閥是在遙控浮球閥的基礎上安裝了常開型電磁閥電控裝置。使電動浮球閥具有雙保險作用,即使在停電或電浮球失靈的情況下,也能控制水位,絕不允許水位超過警戒線或溢出,電動浮球閥可以設置啟閉水位,解決主閥頻繁啟閉的缺點,是新一代的水位控制閥。主要安裝于水池或高架水塔的進水口處,當水位達到設定的高度時,主閥由浮球導閥控制關閉進水口停止供水;當水位下降后,主閥由浮球導閥控制打開進水口向水池 注水,實現自動補水。液位控制精確,不受水壓干擾;隔膜式遙控浮球閥可隨水池的高度及使用空間任意位置安裝、維護、調試、檢查方便,使用壽命長。性能可 靠、強度高、動作平穩。關閉嚴密可靠,閥體采用流線型設計,流體阻力小,流量大;使用維護方便,主閥安裝在水池外面,調試檢驗方便,維修簡單。 YQ98006型過濾活塞式電磁控制閥--產品概述: YQ98006型過濾活塞式電磁控制閥由主閥、電磁導閥、針閥、球閥、微形過濾器組成水力控制接管系統;通過電磁導閥可以實現對閥門開啟和關閉的遙控,當閥門從進口端給水時,水流流過針閥進入主閥上腔控制室,當電磁導閥打開時,控制室內的水經電磁導閥、球閥流出。球閥開度大于針閥開度,主閥上腔控制室內壓力變低,主閥處于全開狀態;當電磁導閥關閉時。 主閥上腔控制室的水不能流出,控制室升壓,推動活塞關閉主閥;本產品利用導閥控制閥門的開啟和關閉,反映準確快速,采用三向電磁閥,維護簡單;安裝于各類給水系統的管道上。 |
|
||
|
||
|
||
|
||
|
||
|
||
|
||
|
||
|
||
|
||
|
||
|
||
|
||
|
||
|
||