銷售熱線:021-66105556
您現在的位置:網站首頁 -> 技術文章 ->
Q347F-16C天然氣固定球閥   發布時間:20-07-09

一、Q347F-16C天然氣固定球閥--產品概述

Q347F/PPL軟密封固定球閥可按客戶需求訂制,閥體可選用鑄鋼、鍛鋼,密封面材料可選用聚四氟乙烯(PTFE)、加坡纖增強聚四氟乙烯(PTFE+GLASS)、對位聚笨(PPL),公稱壓力:0.6-10.0MPa,公稱通徑:15-1200mm,本產品具有性能優異,可靠性高,用途廣泛,價格合理等優點,適用于化工、石油、天然氣、冶金、等行業及含硫化氫介質、雜質多、腐蝕嚴重的天然氣長輸管。

Q347F/PPL軟密封固定球閥兩分式和三段式固定球閥又稱側裝分體式球閥,將閥體沿與閥門通道軸線相垂直的截面分為不對稱的左右兩半,其在管道上主要用于切斷、分配和改變介質流動方面,它的樞軸結構保證了準確的球體位置,標準閥座采用彈簧結構,將閥座推向球體,保證了良好的低壓密封性能,該球閥閥前、閥后、閥座都能密封,即所謂雙向密封特性,利用自帶的排放閥,閥體中腔可向外排放,樞軸采用防吹出保護結構,低摩擦系數的軸承等。



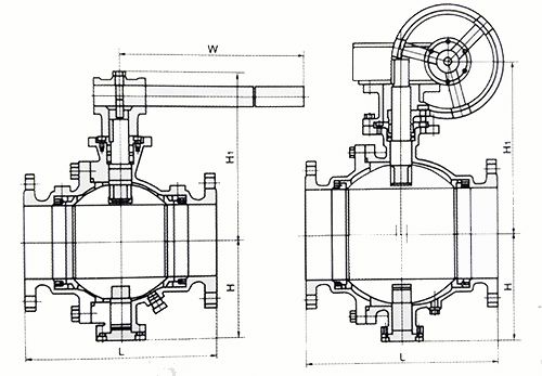
二、Q347F-16C天然氣固定球閥--結構簡圖:


三、Q347F-16C天然氣固定球閥--基本型號:

軟密封固定球閥Q347F、Q347PPL,硬密封固定球閥常見的型號有Q47H、Q47Y、Q347H、Q347Y、Q347F、Q647H、Q647Y、Q947H、Q947Y等。

四、Q347F-16C天然氣固定球閥--執行標準:

設計和制造標準:GB/T12237

結構長度標準:GB/T12221

閥門檢驗和試驗標準:GB/T13927

連接法蘭標準:JB/T79.1 GB/T9113.1-9113.4


· QDQ421F氣動緊急切斷閥用途 18-12-28
· 氣動調節閥和氣動截止閥的工作原理 23-05-26
· 氣動切斷閥使用溫度和材質有關系嗎 25-03-10
· 安全閥的排放壓力和回座壓力的調整 12-09-01
· PZ973W-10P_電動不銹鋼刀型閘閥 19-08-22
· 天然氣球閥泄漏的原因及處理方法 20-04-14
· 切斷調節閥介紹 20-09-27
· 緊急氨用切斷閥 22-10-25
· 閥門的分類 21-04-10
· 根據行業工藝的不同來正確選用的閥門 17-10-21
· 緊急切斷閥的作用與用途 23-12-28
· SZKQ641F高壓氣動緊急切斷閥 21-11-12
· 電動防爆球閥的選型 22-06-10
· 閥門安裝注意事項二 18-07-10
· 不銹鋼法蘭蝶閥 18-12-27