

| 新型抗菌素多功能閥門的應用技術說明 發布時間:18-01-22 |
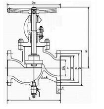
![]() 上海上兆閥門提供產的抗菌素多功能閥門是一種裝置在制藥行業、酒廠、生物企業、化工行業的儲罐和管道上開關的閥門,通常用在儲罐的進出口。第二代抗生素截止閥是每個制藥、生物企業不可缺少的主力軍,特別是發酵車間和提煉車間,它們是用來切斷或溝通蒸汽、水、培養基、空氣等流體,調節流體的流量,控制管道或容器內壓力不可缺少的控制管道件。但普通閥門用于發酵生產中會經常發生滲(泄)漏,產生閥門常見的跑、冒、滴、漏現象,有的甚至還發生嚴重染菌、倒罐惡果,造成閥門應用企業生產菌源污染以及物料的大量浪費、減少產量、交貨延期、成本增加等等。用現代科技、先進工藝研究開發能完全適應發酵工業要求的新產品,以滿足發酵工業日益壯大燃眉之急。 1.抗菌素多功能閥門概述 發酵工業是我國最古老傳統的產業,曾以出色釀造出茅臺、五糧液技術而聞名全世界。隨著時代的發展、科技的進步、人民生活水平的不斷提高,發酵技術的應用領域不斷得到擴展與延伸,現在在醫藥抗生素原料藥、生物化工、生物農藥、酶制劑及食品發酵生產過程中,又獲得了新的發展天地。隨之而來,醫藥藥品的大批量、現代化、自動化工業生產,越來越多地暴露出我國生產設備與發酵生產工藝遠遠達不到發酵工藝流程要求,這些問題如不及時解決,必將嚴重制約該行業的進一步向前健康發展。 閥門是每個制藥、生物企業不可缺少的主力軍,特別是發酵車間和提煉車間,它們是用來切斷或溝通蒸汽、水、培養基、空氣等流體,調節流體的流量,控制管道或容器內壓力不可缺少的控制管道件。但普通閥門用于發酵生產中會經常發生滲(泄)漏,產生閥門常見的跑、冒、滴、漏現象,有的甚至還發生嚴重染菌、倒罐惡果,造成閥門應用企業生產菌源污染以及物料的大量浪費、減少產量、交貨延期、成本增加等等。用現代科技、先進工藝研究開發能完全適應發酵工業要求的新產品,以滿足發酵工業日益壯大燃眉之急。 2.新型抗菌素多功能閥門設計 按照制藥行業GMP標準要求,新型抗菌素多功能閥門不僅要有良好的密封性能,而且對密封材料上也有嚴格要求。從材質上能夠適應較高溫度、壓力;在工作時介質對閥門密封材料的沖蝕、腐蝕和磨損不受影響,能保證閥門在使用期內不滲(泄)露。我們重點從閥門的內部結構設計入手,讓每只閥門能夠有效地阻止有害細菌在閥體內的衍生、繁殖,杜絕應用企業發生染菌、倒罐現象,不斷提高應用單位的發酵收得率和企業的經濟效益。 ![]() 3.閥門結構主要特點(創新點) 新型抗菌素多功能閥門(以下簡稱新型功能閥)主要由閥體、排氣閥、密封圈、錐形閥瓣、下閥瓣、密封墊、壓板、彈簧座、彈簧、上閥瓣、隔膜片、隔膜瓣、對開環、閥瓣螺蓋、閥桿、閥蓋、閥桿螺母、手輪、四氟墊片、等等組成(見總圖)。但新型功能閥與一般閥門——截止閥對比大不一樣,新型功能閥它由原來三種閥門分別操動,現改裝為三合一操動,大大改變了原來的面貌,即省事又省錢,打破原來截止閥密封性能差,隔膜片耐溫達不到要求,許多藥廠靠高額進口隔膜片來維持作業。新型功能閥由節流閥、截止閥、隔膜閥三合一來代替原來抗生閥,而且在抗生閥基礎上更上一層樓,它主要具備以下五大特點: (1)從圖中可以明顯地看出,閥體(序號1)其流道呈螺旋形,在流通過程中沒有拐點、無任何死角,上有隔膜片隔離,無物料滯留,可以安全、衛生輸送物料,便于清洗,因此不易發生染菌,而且,在底部開有排氣孔,完全符合制藥行業GMP標準要求。 (2)從總圖中可以清楚的看出閥桿(序號18)中的螺紋部位,不管閥門如何開啟或關閉,閥桿的螺紋部位均不會與閥門內任何工作介質直接接觸,因此徹底避免了物料在閥桿螺紋處粘結和滯留的機會,因而閥桿與物料與世隔離。 (3)從密封圈與錐形面接觸后再由截面接觸起到雙重關閉作用。接觸面經激光熔覆強化處理,大大地提高了其表面硬度和耐磨性,延長了閥門的使用壽命。 (4)閥體材料按各企業不同工作介質、工藝(溫度、壓力)要求選擇不同的耐腐蝕材料,如304、316L。 (5)該閥門設計合理、體積小、材質優良、無死角、密封性能好、防腐性能強、運轉均勻、操作方便、經久耐磨、清洗方便、消毒徹底、降低能源、節省時間、裝配方便、零部件通配等十幾大優點。 ![]() 4.閥體設計 閥體是閥門中最重要的零件之一,它作為介質的流動通道和控制咽喉要道,要承受工作介質的壓力、溫度、沖蝕和腐蝕。閥門設計關鍵是閥體設計。閥體的結構雖然千變萬化、各種各樣、絢麗多彩,但兩個截面明確的功能分工始終是一樣的,閥體的縱截面確定流體的流向,閥體的橫截面確定流體流過該截面流體的面積,根據流體力學原理,結合制藥行業GMP標準要求,我們把閥門的縱截面設計成先有錐面后有截面,流量形成旋渦形,讓物料迅速離開閥內。整個流程線路上沒有拐點、無任何死角,使流動方向和通道形狀不會發生滯留的現象以及達到流體無阻力之目的,閥體上密封圈接觸面設計成喇叭形,讓物料象噴泉一樣噴出(序號3),有利于工作介質的流動。在閥體的底部增設了排氣孔,即利于生產開始時管道中的污氣排放,又利于生產過程中的消毒。對有些不使用該排氣孔的企業,我們還專門為上述企業設計了不開排氣孔閥體。 5.密封面的激光處理 閥門密封面長期在較高的溫度和壓力下承受工作介質的各種腐蝕和沖蝕,有的還承受密封面之間的檫傷磨損。采用高科技激光機(HGL-90型5KW)聚焦后的激光術來對閥體與閥瓣(序號3)密封層面進行單道激光掃描(工藝參數為:激光功率W=3kw,掃描速度U=8-20mm/s,光斑尺寸=φ5-φ10mm),控制好能量密度與掃描速度,可使熔層與基體不但牢固結合,互熔區小,而且對閥體熱應力影響小。激光一次熔覆Co基或Ni基合金層厚度可達3mm,涂層表面光滑平整,可提高硬度20%-40%。測試與生產應用表明,經激光熔覆處理的閥門密封面在惡劣工況下具有良好的耐磨損、抗沖蝕氣蝕、抗腐蝕疲勞和抗高溫沖擊疲勞等性能優點,提高了閥門使用的可靠性、安全性和延長使用壽命。 6.密封材料的選擇 密封材料及其性能同閥門的質量密切相關,有些密封材料不適應這個流體工況,不利于密封,有些密封材料適應這個流體工況,有利于密封。我公司出廠的閥門產品結構不一,品種規格不同,密封件因企業的工況要求而選用不同的材料。我們配有耐熱性、耐磨耗性、耐堿性、耐酸性,常用的四種工況條件,列成下表,按表配選。 |
|
||
|
||
|
||
|
||
|
||
|
||
|
||
|
||
|
||
|
||
|
||
|
||
|
||
|
||
|
||