
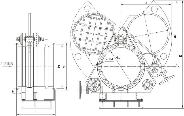
電動推桿式盲板閥F9T43X-2.5-1200主要用于煤氣管道的介質切換保證零泄漏,電動推桿盲板閥帶有防爆行程開關機防爆型電機。電動推桿扇形盲板閥又名電動推桿扇形眼鏡閥,電動推桿扇形翻板,主要由左閥體、右閥體、閥桿、閘板、密封圈、電動推桿等零件組成,并由底座、支撐柱構成一個剛性結構體。密封部位采用不銹鋼與橡膠密封圈,密封性能好,使用壽命長,密封圈設置閘板上,易于維護時更換密封圈,橡膠密封圈鑲鉗在閘板上。電動推桿盲板閥可以單臺遠距離控制,亦可多臺聯網遠距離控制,非正常情況下還可以利用閥門本身裝置手動操作。 電動推桿盲板閥主要外形尺寸: 單位:mm

DN | D | D1 | b | n-φd | L | 300 | 440 | 395 | 18 | 12-φ22 | 500 | 350 | 490 | 445 | 18 | 12-φ22 | 600 | 400 | 540 | 495 | 24 | 16-φ22 | 600 | 450 | 595 | 550 | 24 | 16-φ22 | 600 | 500 | 645 | 600 | 26 | 20-φ22 | 600 | 600 | 755 | 705 | 26 | 20-φ26 | 600 | 700 | 860 | 810 | 26 | 24-φ26 | 600 | 800 | 975 | 920 | 35 | 24-φ30 | 800 | 900 | 1075 | 1020 | 35 | 24-φ30 | 800 | 1000 | 1175 | 1120 | 35 | 28-φ30 | 800 | 1100 | 1275 | 1220 | 35 | 36-φ30 | 800 | 1200 | 1375 | 1320 | 35 | 32-φ30 | 800 | 1300 | 1475 | 1420 | 35 | 36-φ30 | 800 | 1400 | 1575 | 1520 | 35 | 36-φ30 | 800 | 1500 | 1675 | 1620 | 35 | 36-φ30 | 850 | 1600 | 1790 | 1730 | 35 | 40-φ30 | 850 | 1800 | 1990 | 1930 | 35 | 44-φ30 | 1100 | 2000 | 2190 | 2130 | 35 | 46-φ30 | 1100 |
|