

| YQ98002過濾活塞式安全泄壓閥技術參數 發布時間:17-08-25 | ||||||||||||||||||||||||||||||||||||||||||||||||||||||||||||||||
YQ98002過濾活塞式安全泄壓閥技術參數 一、YQ98002型過濾活塞式安全泄壓閥--原理: YQ98002型過濾活塞式安全泄壓閥安裝在高層建筑、消防給水系統以及其它給水系統的管道上,當給水管路中壓力超過泄壓閥設定壓力時,泄壓閥自動開啟快速泄壓,保護管線安全,也可作持壓閥用, 保障主閥上游的供水壓力。上海上兆閥門制造有限公司生產的YQ98002型過濾活塞式安全泄壓閥能準確保持不變的安全設定壓力,一旦超壓,泄壓閥迅速打開,及時泄壓。關閉平穩可靠,消除壓力余波。利用水力自動操作,即可以作泄壓閥用又可作持壓閥用。作泄壓閥用時,可維持供水路壓力在設定的安全值之下;做持壓閥用,可維持主閥上游水壓在設定值之上,保持主閥上游供水壓力。 二、YQ98002型過濾活塞式安全泄壓閥--連接尺寸:
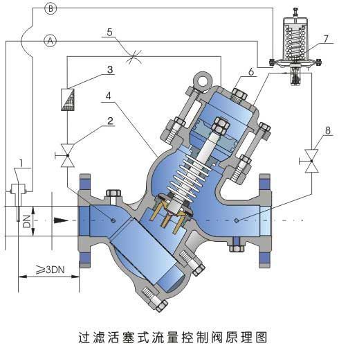
三、YQ98002型過濾活塞式安全泄壓閥--特點: 1.畢托管向極敏感的限流導閥傳遞壓信號, 無孔板孔口節流, 無壓力損失, 節能. 2.限流導閥中有極靈敏的彈簧對流量進行調節, 操作簡單而且準確. 3.Y形寬體閥腔,流阻小.抗汽蝕性強. 日介質自身壓力自控, 無需外供驅動源. 5.主閥體的進口法蘭與閥座之間設了過濾器, 節省投資成本和安裝費用. 6.內外表面均噴澮環保涂層.確保產品的防府蝕及安全。 四、YQ98002型過濾活塞式安全泄壓閥--技術參數:
六、YQ98002型過濾活塞式安全泄壓閥--安裝方式及連接要求: 一、根據工況的減壓特性,必須在該閥前安裝 閘閥; 二、方便日后對該閥進行檢修工作.必須在減壓閥后安裝可曲繞軟連接; 三‘最佳安裝方式為臥式,其它方位也可以接受; 四、必須留出足夠的工作空間方便檢修; 五、吊裝時采用有效措施進行.也可利用該閥吊環進行。 七、YQ98002型過濾活塞式安全泄壓閥--安裝圖:
上兆閥門其他產品: 閘 閥 截止閥 球 閥 蝶 閥 緊急切斷閥 電磁閥 水力控制閥 止回閥 刀型閘閥 旋塞閥 過濾器 減壓閥 疏水閥 隔膜閥 調節閥 阻火器 呼吸閥 燃氣閥門 冶金閥門 |
|
||
|
||
|
||
|
||
|
||
|
||
|
||
|
||
|
||
|
||
|
||
|
||
|
||
|
||
|
||